Портфолио
Новости
Контакты
2016 © Все права защищены.
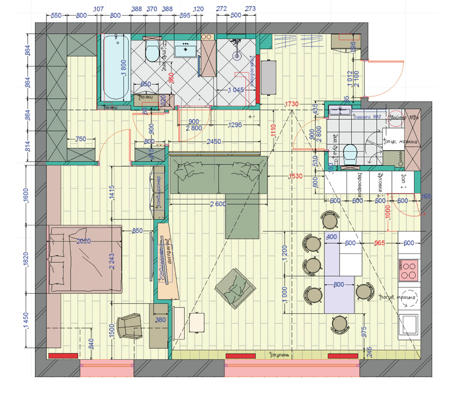
Лофт-квартира на Дибуновской
Главная
Портфолио
Интерьер
Компания:
Частное лицо
Опубликовано:
20.12.2020
Сделали:
Павел Палей
Лофт-квартира на Дибуновской